4 Abel Road
4 Abel Road
4 Abel Road
4 Abel Road
SEE ALL PHOTOS
4 Abel Road
4 Abel Road
4 Abel Road
4 Abel Road
Sold

4 Abel Road

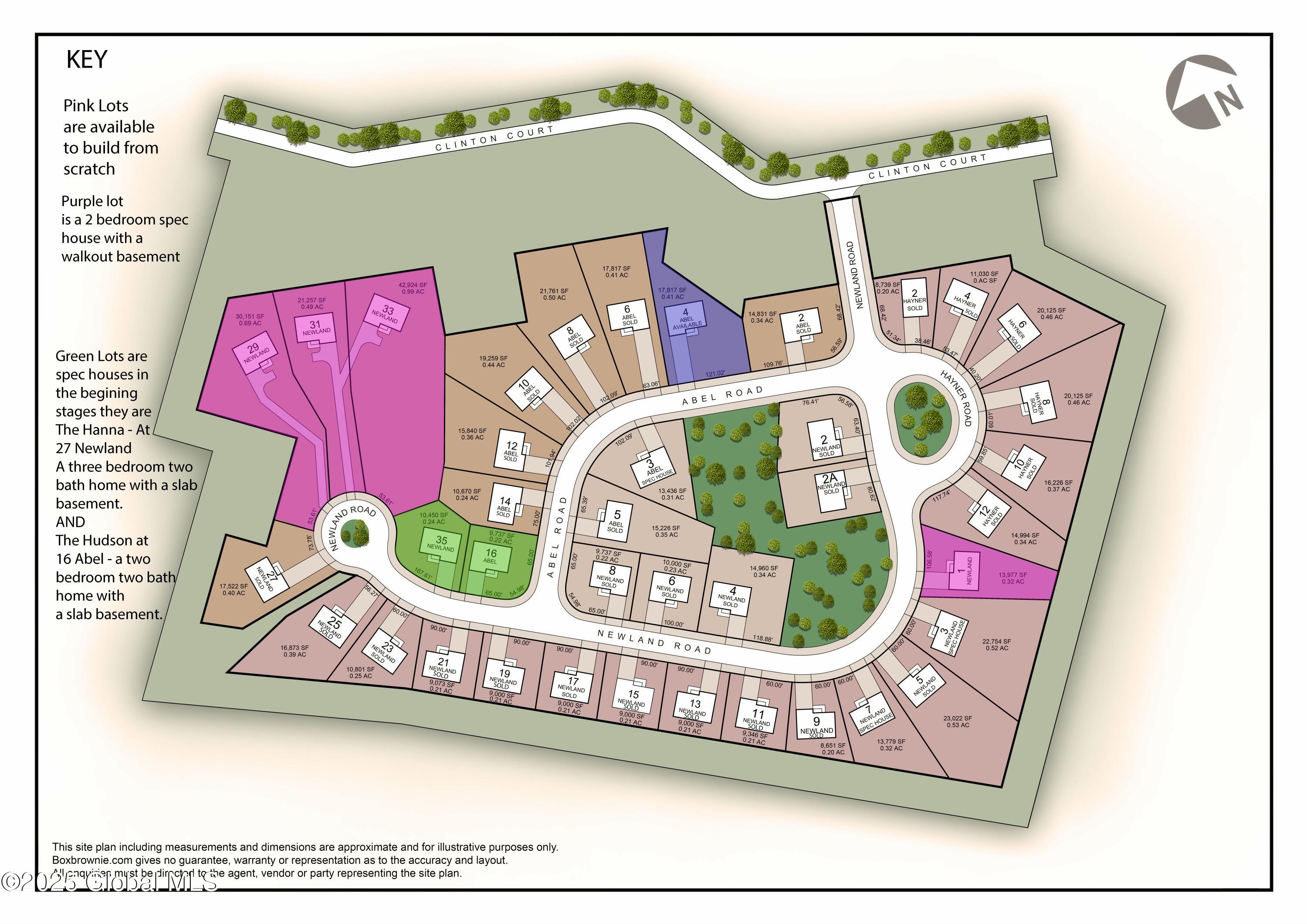
4 Abel Road, Stillwater, NY 12170

$425,704
One floor living. This cozy two-bedroom is perfect for downsizing or a small family. The main living area has a great open floor plan. Spacious primary suite with dual vanity and walk-in closet. Additional bedroom and guest bath. Attached is a two-car garage. The walk-out basement features a sliding glass door and an egress window. This means you can have a third bedroom and space for a bonus room. Pick your finishes. Broker owned.

2
beds

2
baths

1,125 Sq.Ft. LIVING AREA

0.41 Acres lot

John Hart

John Hart

Features & Amenities

Interior

  • total bedrooms2
  • Total bathrooms2
  • full bathrooms2
  • Laundry room Main Level
  • APPLIANCES Dishwasher, Electric Oven, Microwave, Oven, Refrigerator
  • other interior Features Grinder Pump, Paddle Fan, Walk-In Closet(s), Ceramic Tile Bath, Kitchen Island

Area & Lot

  • Status Sold
  • Living Area1,125 Sq.Ft.
  • Lot Area0.41 Acres
  • MLS® ID202513178
  • TypeResidential
  • YEAR BUILT2025
  • Architecture StylesRanch
  • Elementary SchoolStillwater
  • High SchoolStillwater
  • School DistrictStillwater

Exterior

  • Garage Space2.0
  • water SourcePublic
  • utilitiesCable Available, Underground Utilities
  • parkingOff Street, Paved, Attached, Driveway
  • HEAT TYPEForced Air, Propane, Propane Tank Owned
  • AIR CONDITIONINGCentral Air
  • sewerPublic Sewer
  • other exterior FeaturesDrive-Paved, Lighting

Financial

  • Sales Price$425,704
  • Real Estate Tax $7,000/yr
  • Zoning Single Residence

Work With John

Looking to buy or sell a home in Saratoga Springs? Contact John today to schedule a consultation and take the first step towards achieving your real estate goals. Whether you're a first-time homebuyer or a seasoned investor, John has the knowledge, skills, and resources to help you succeed.

Follow Me on Instagram